
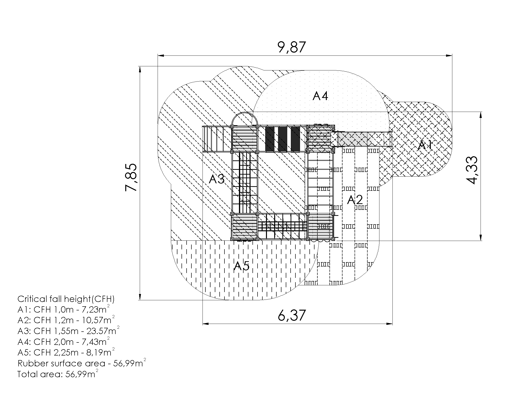
Play centre with four platforms for diverse and developing play. Various ladders lead up tot he platforms. A swinging bridge with handrails and swinging steps, a net tunnel and a sloping net bridge offer paths forward. A horizontal ladder challenges kids to move between the platforms without stepping down. The play centre comes equipped with a slide and a firemans pole. The side panels of the play centre can be switched for various activity walls or thematic printed panels (animals, birds, fish, trees, berries, etc.). The design of the panels will be finalised with the client during ordering.
